首先我們來看一下效果圖:

相關素材:


下面就請跟我一起來制用吧:
1 、 新建文檔,大小為210mm*285mm,如下圖所示:

2、點擊“邊距與分欄”選項卡,將頁邊距上下左右各設置為0,單擊確定,如下圖所示:

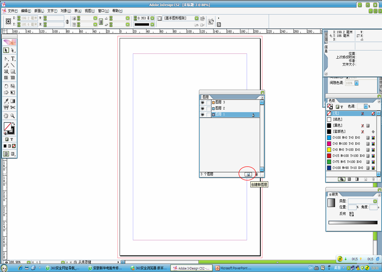
3、執行“窗口——圖層(F7)”將圖層面板打開,新建3個圖層,如下圖所示:


4、選中“圖層1”,打開圖層調板菜單,選擇“圖層1圖層選項”命令(或雙擊圖層1,彈開“圖層選項”對話框,將圖層名稱改為“背景”,如下圖所示:

5、同樣方法將圖層2、圖層3分別將圖層名稱改為“圖像”、“線條”如下圖所示:

6、在“背景”圖層上使用矩形工具繪制與頁面同等大小的矩形,將其填充為洋紅,色調設置為20%,如下圖所示:

7、選中矩形,執行“對象——羽化”或右擊,彈開“羽化”對話框,勾選“羽化”選項卡,將“羽化寬度”為“5”,“角點”為“擴散”效果。如下圖所示:


8、切換到“圖像”圖層,執行“文件——置入”(Ctrl+D),將蝴蝶導入到頁面放置到合適位置,執行“窗口——透明度”(Shift+F10),打開“透明度面板,將透明度設置為"20%",如下圖所示:


9、復制一個蝴蝶(選中對象按Ait并拖動即可復制對象),重復步聚8方法將盆景圖片導入到頁面,放置合適位置,并將其設置透明度,如下圖所示:

10、再切換到“線條”圖層上使用直線工具繪制長度為160mm直線,將其設置為紅色,選中紅色直線按,Shift+Ait拖動,復制一條直線,再按Ait+Ctrl+3(執行再次變換),從而得到多個間距相等的直線,再將其群組與背景對齊,最后也可將群組的線條對象設置一個陰影。如下圖所示:

11、最終效果如下圖:

安徽新華電腦學校專業職業規劃師為你提供更多幫助【在線咨詢】

熱門精品專業

